Fraud Blocker
Schedule Tour
Price: $999,109
Home Type
Townhome
Home Size
3,086 Sq Ft
Bedrooms
3
Bathrooms
4 full / 1 half
Garage
2 car (s)
Lot
571

OVERVIEW

  • Full Brick Front
  • Linear fireplace in the family room
  • Wet Bar in Loft with sliding glass doors to rooftop terrace
  • Gourmet kitchen Features:
    • Gas stainless steel appliances
    • Upgrade 1 Barnett Duraform Linen Cabinets
    • Upgrade 2 Iced White quartz counters
  • Owner's Super Bath Features:
    • Freestanding Tub
    • Floor to ceiling 12 x 24 Artiquity Renoir Grey shower tile and mosaic tile shower floor
    • Upgrade 1 Barnett Duraform Linen cabinets
    • Upgrade 2 Iced White quartz

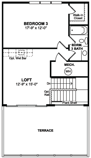
FLOOR PLAN

Price: $999,109

Lincoln – Lot 571

Lot 571
606 Catamaran Way, Oxon Hill, MD, USA
Home Type:
Home Size:
Bedrooms:
Bathrooms:
Garage:
Townhome
3,086 Sq Ft
3
4 full / 1 half
2 car (s)
Ground Level
Main Level
Bedroom Level
Loft Level

Gallery

Hey there, I'm Andrea

Explore our award-winning homes and schedule a tour today. Have questions about scheduling a tour, our communities or floor plans? Reach out to us! Our team is excited to assist you in finding your dream home. Complete the form or call us at (703) 223-6286.
*Base pricing does not include Elevation Charge and/or Lot Premiums

All floor plans and renderings are conceptual and used for illustrative purposes only and are subject to change without notice. Renderings are artist concepts and elevations may include optional features and cladding: Floorplans are intended as a representation of the blueprints. Builder reserves its right to change or alter its plans, specifications, prices, and materials without notice or obligation. Please consult the sales representative for details.

Copyright © 2026 Integrity Homes. All rights reserved.
Privacy Policy

Maryland | Frederick, MD | National Harbor, MD | Potomac, MD
Virginia | Alexandria, VA | Fairfax, VA | Lorton, VA | Northern, VA | Stafford, VA | Stephenson, VA | Winchester, VA | Washington DC

Top envelopecrosschevron-rightarrow-leftarrow-rightcross-circle